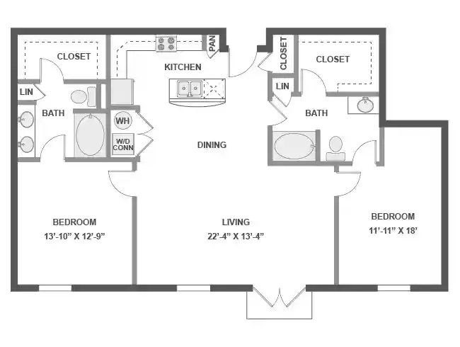
Floorplans
/ C7A

All Floor Plans
AMLI 300 Available Units
Move-in
//
FILTERS
There are currently no units available at our standard market rent rates.
Additional Costs & Add-Ons
Understanding Costs
Upfront Costs
Pets
Parking
Storage
Other
Application Fee
$100.00*
Admin Fee
$250.00*
Deposit
$300.00*
* Prices may vary by unit.
